Carlos Juan X

Project Type: Residential Building
Position on the project: On-site architectural lead
Location: Santo Domingo, Dominican Republic

Project Description:
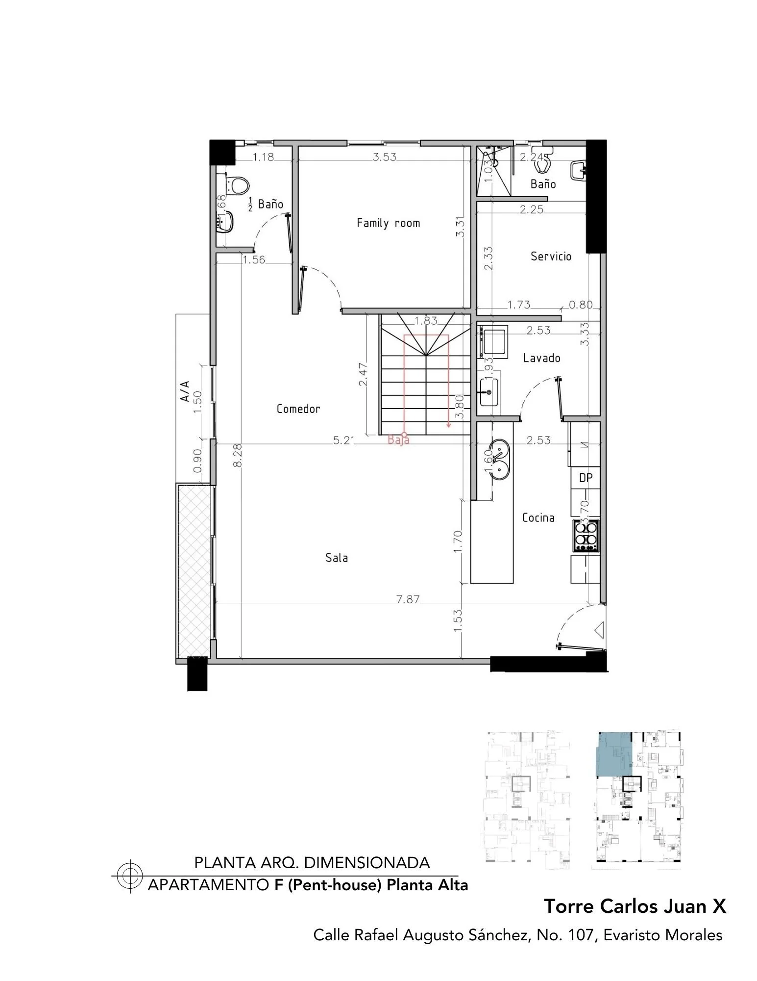
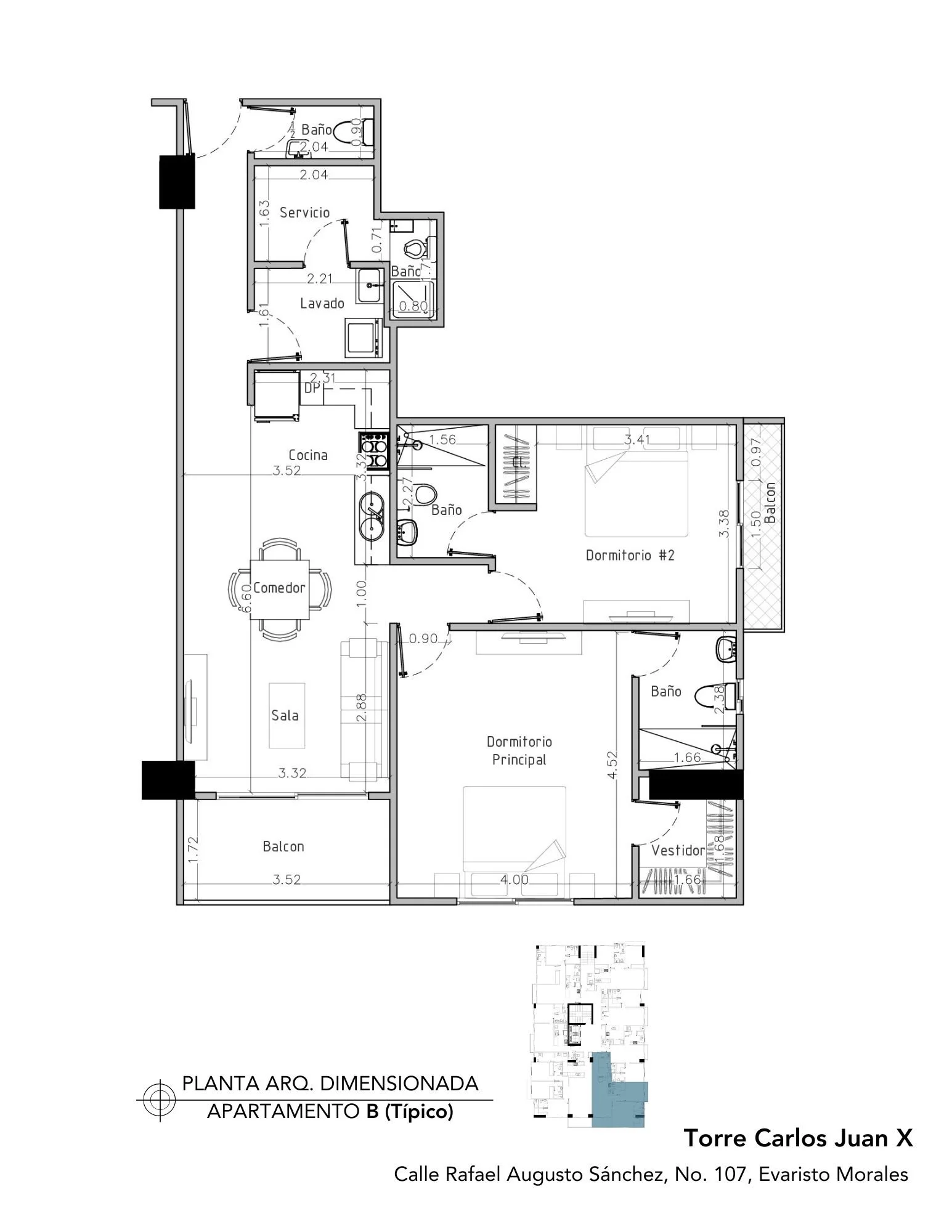
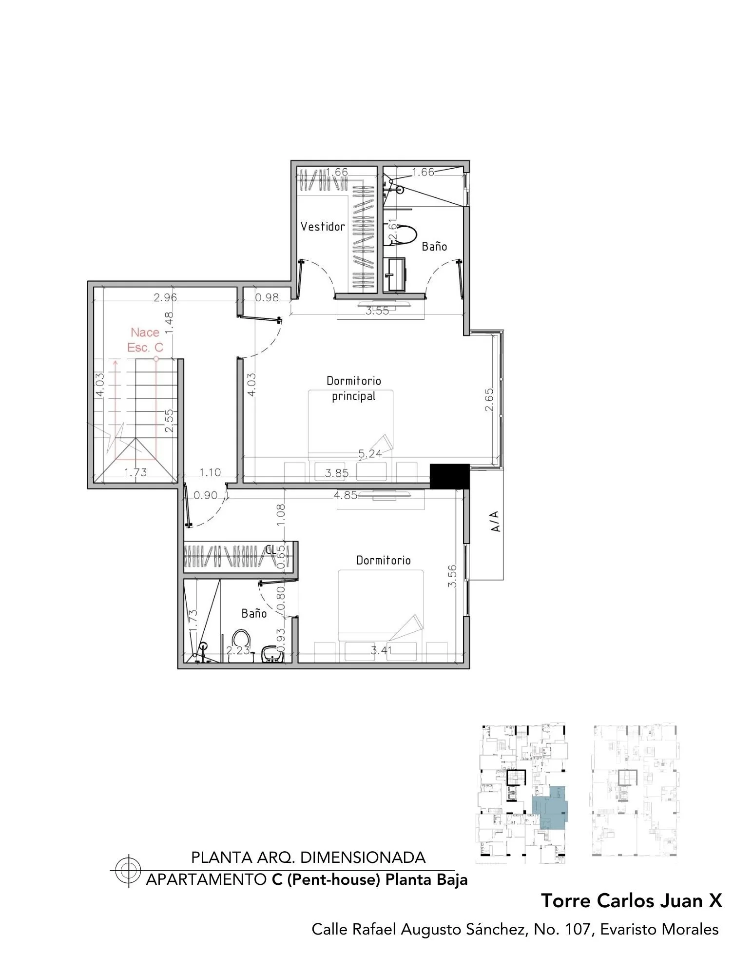
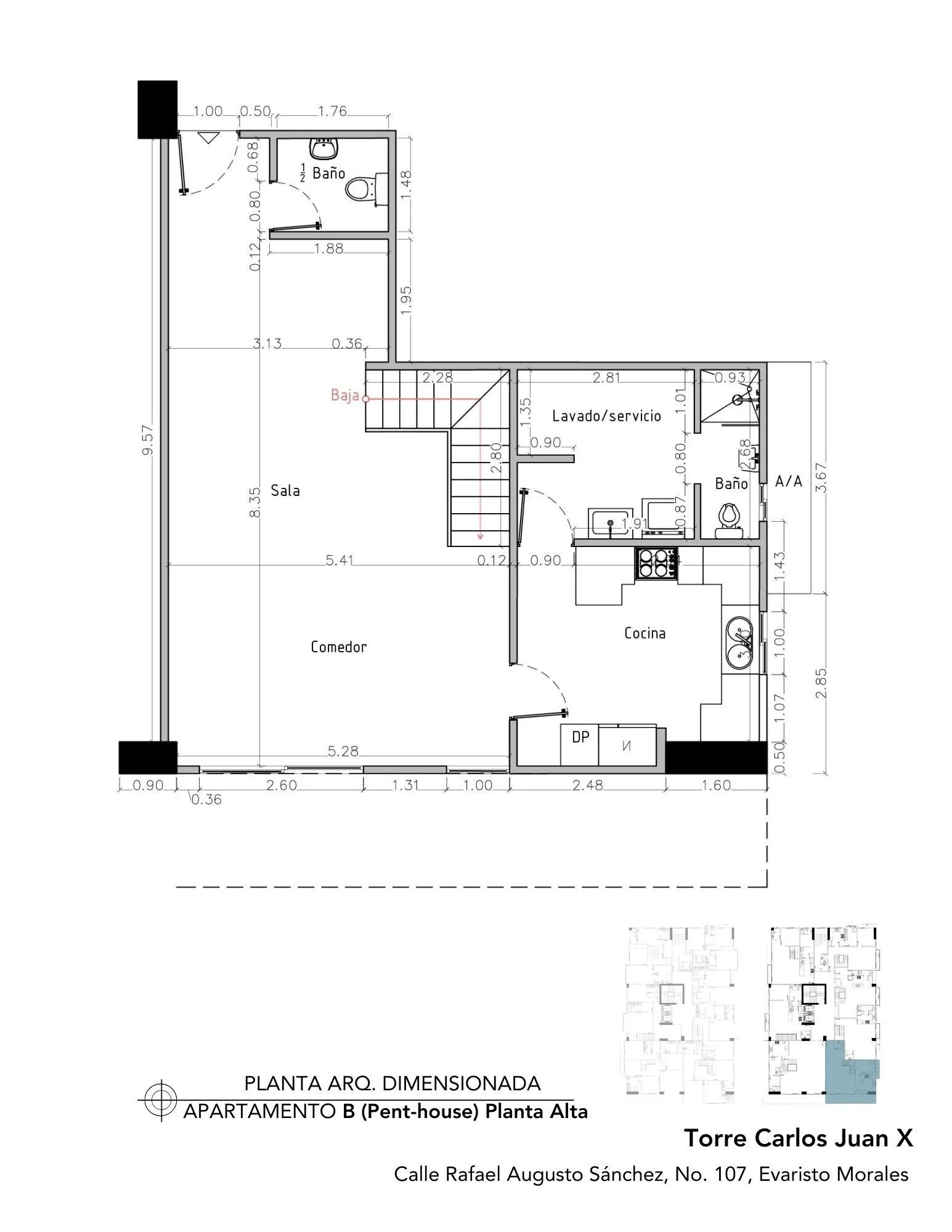
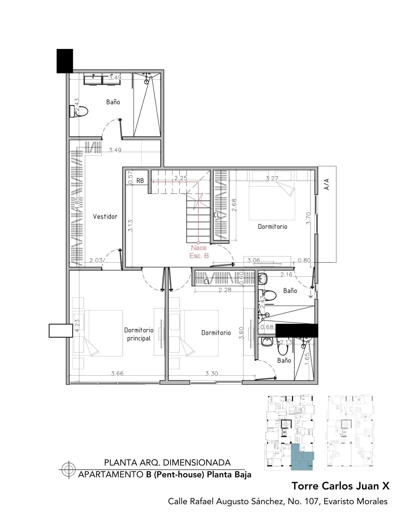
Carlos Juan X is an exclusive residential development in Santo Domingo’s Evaristo Morales neighborhood, designed to blend contemporary architecture with refined interior design. The building comprises 77 apartments, including seven two level penthouses, offering a diverse range of living spaces tailored to modern lifestyles. The design emphasizes openness, natural light, and material harmony, creating interiors that balance comfort with sophistication.

High-quality finishes were carefully selected to elevate both private and shared spaces. Amenities include a pool, outdoor terraces, BBQ zone, gym, kids’ room, and multipurpose salon — all conceived as extensions of the home. At the rooftop level, the social area acts as a design centerpiece, providing residents with thoughtfully planned environments that encourage relaxation, gathering, and community connection


My Role

As the on-site architectural lead, I oversaw the project from excavation through to the final aesthetic finishes. I guided the design concept and space planning, ensuring the vision was faithfully translated into construction. My responsibilities included directing material selection and finishes to maintain design integrity and project standards from the exterior expression of the building to the interior appeal.I collaborated closely on transforming not only the standards and finishes of each apartment but also the shared amenities, including the pool, outdoor BBQ, gathering spaces, gymnasium, kids’ room, and multipurpose room. These enhancements were designed to elevate the overall quality of life for the apartment owners.

To achieve this, I coordinated with contractors, engineers, and the client, addressing design challenges in real time and ensuring alignment between the client’s needs and the project’s execution

Apartments Layout

Excavation - Structure

Apartments Finishes

Current Construction Photos