Public Assemblies

Project Type: Restaurants, Lounges
Position on the project: Project Manager/ Architectural Designer
Location: Queens, NY

Project Description:
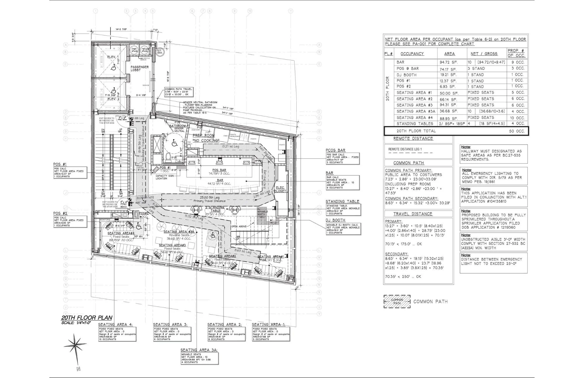
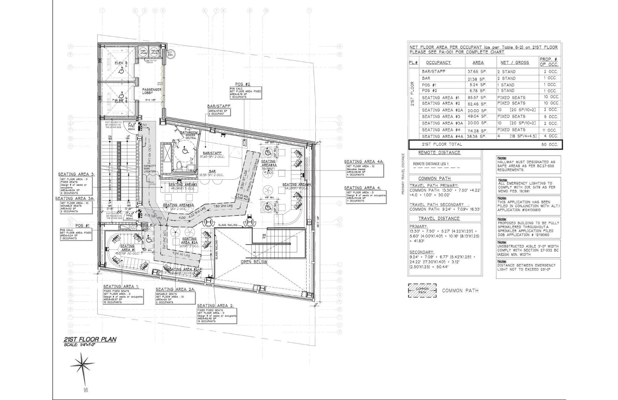
This is a compilation of public assembly projects in which I had the opportunity to serve as project manager. The majority of these projects consisted of restaurants and lounges with an occupancy of more than 75 people.

Because of their public assembly classification, additional permits and applications were required to ensure compliance with safety standards. My responsibilities included preparing and submitting documentation to verify that exits, egress paths, and overall layouts adhered to applicable codes and regulations.

My Role:
As project manager, I was responsible for coordinating the design and permitting process to ensure each project met NYC Department of Buildings (DOB) and Public Assembly (PA) requirements. This included producing and reviewing construction drawings, preparing occupancy load analyses, and overseeing egress compliance.

I worked closely with owners, consultants, and contractors to address layout challenges and integrate design intent with code compliance. In addition, I managed the submission of permit applications and documentation for PA approval, ensuring projects moved forward smoothly while meeting all regulatory and safety standards.

Rooftop Lounge